Multilocale in affitto

Corteolona E Genzone, Piazza verdi - Corteolona
€ 500 / mese
2 locali 2 locali
60 Mq 60 Mq

Multilocale in affitto

Corteolona E Genzone, Piazza verdi - Corteolona

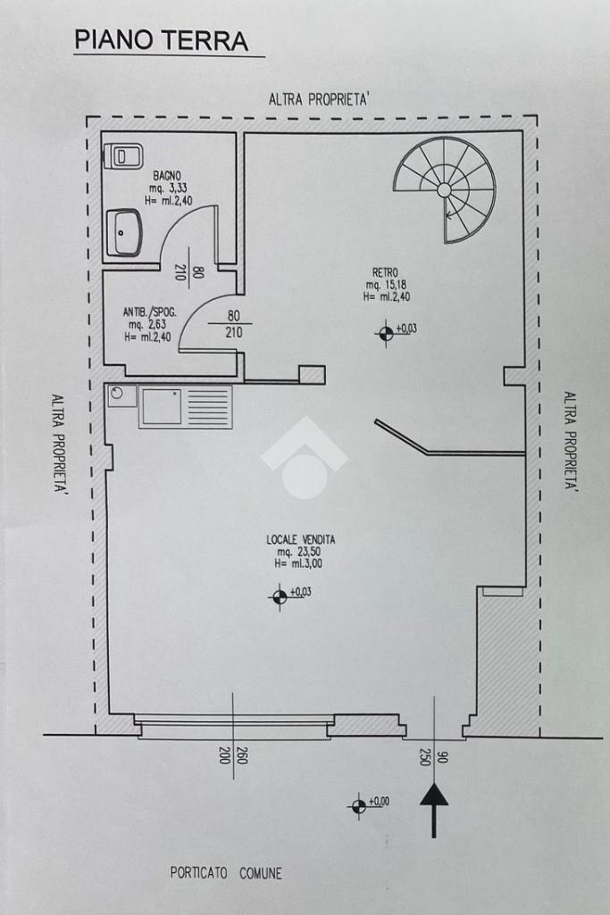
Descrizione annuncio

Corteolona: proponiamo in locazione negozio composto da due locali e bagno oltre a locale sottotetto. L'immobile si presenta in buone condizioni generali.

Mostra tutto

Nelle vicinanze

Trasporto pubblico Trasporto pubblico
Corteolona
Corteolona
400 m
Santa Cristina e Bissone
Santa Cristina e Bissone
2,3 Km
Scuole Scuole
Scuole
2,4 Km
Farmacia Farmacia
Farmacia Lunghi
210 m
Farmacia Dott. Alberto Preceruti
1,9 Km
Ospedali Ospedali
ASL - Corteolona
290 m
Negozi Negozi
Negozi
2,0 Km
La Boutique del Pane
2,0 Km
Bar Bar
Dream Bar
260 m
Bar Modena
270 m
Bar Gatti
1,9 Km
Sport Cafè
2,1 Km
Ristoranti Ristoranti
Trendy Bar Ristorante Pizzeria
760 m
Pizzeria A Vucciria
2,1 Km
Mostra tutto

Caratteristiche

Rif.:
61167791
Piano:
Su più livelli di 2
Totale piani:
2
Arredamento:
Assente
Condizionamento:
Autonomo
Ascensore:
No
Mostra tutto
Prezzo Prezzo
€ 500 / mese
Spese annue Spese annue
€ 0

Altre caratteristiche

Descrizione dei locali
Bagno Cieco

Classe Energetica

G
G
G
G
G
G
G
G
G
EP globale non rinnovabile:
32112.00 kW h/m² anno
EP invernale del fabbricato:
EP estiva del fabbricato:
Anno di costruzione:
1990
Riscaldamento:
Autonomo
Tipo impianto:
A radiatori
Tipo alimentazione:
Metano

Ti interessa visionare l'immobile?

Fissa un appuntamento  Fissa un appuntamento

Richiedi informazioni

Clicca su Leggi per aprire l'informativa
* Questi campi sono obbligatori
Affiliato
Studio Pavia Tre D.I.
Via Garibaldi, 28 27011 Belgioioso (PV)

Il nostro staff


  • Beniamino Rampino
    Affiliato

  • Maria Renna
    Responsabile

  • Camilla Mauri
    Coordinatrice

  • Paola Palanza
    Responsabile
Via Garibaldi, 28 27011 Belgioioso (PV)
Zona: Belgioioso-Albuzzano-Linarolo-Corteolona-S. Cristina
Mostra su mappa
Orari: Dal Lunedì al Venerdì 9:00 - 12:30 14:30 - 19:30 Sabato 9:00 - 12:30 Pomeriggio su Appuntamento
Affiliato
Studio Pavia Tre D.I.
Via Garibaldi, 28 27011 Belgioioso (PV)

2026 Tecnocasa Franchising S.p.A. - P. IVA 08365160152 - Via Monte Bianco 60/A 20089 Rozzano (MI). Ogni agenzia ha un proprio titolare ed è autonoma. Privacy policy | Policy utilizzo | Cookie policy