Trifamiliare in vendita

Belgioioso, Via Giovanni Verga
€ 259.000
4 locali 4 locali
170 Mq 170 Mq
2 bagni 2 bagni

Trifamiliare in vendita

Belgioioso, Via Giovanni Verga

Descrizione annuncio

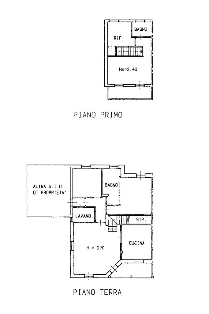
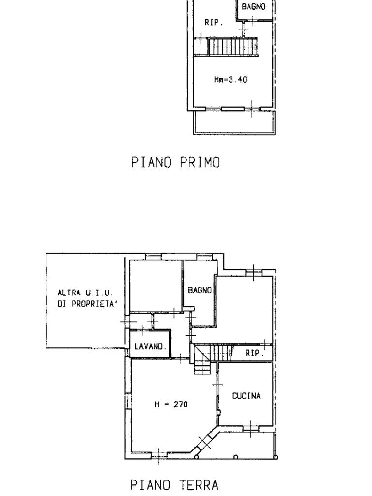
Nel comune di Belgioioso porzione di trifamiliare in vendita, ideale per chi cerca una soluzione abitativa spaziosa e funzionale. L'immobile, costruito nel 2002, si estende su una superficie di 170 mq e si sviluppa su 2 livelli offrendo un comodo accesso a tutte le aree della casa. Al piano terra troviamo: il soggiorno con camino e cucina abitabile, due camere, il primo bagno e la lavanderia. Al primo piano troviamo invece: la terza camera, il secondo bagno e un ulteriore locale utilizzibile come studio. Completano la soluzione il box e il giardino che rappresenta un valore aggiunto, offrendo un'area esterna da vivere in ogni stagione. Il contesto residenziale è tranquillo e ben servito. Questa porzione di bifamiliare è una soluzione interessante per chi desidera vivere in un ambiente accogliente e ben collegato, senza rinunciare alla privacy e al comfort di una casa indipendente. Libera da Ottobre 2026.

Mostra tutto

Nelle vicinanze

Trasporto pubblico Trasporto pubblico
Belgioioso
Belgioioso
610 m
Linarolo Cavallotti
Linarolo Cavallotti
3,0 Km
Farmacia Farmacia
Farmacia
450 m
Farmacia Marinetti Carlamaria
1,5 Km
Ospedali Ospedali
Presidio Ospedaliero IRCCS San Matteo "Ugo Dozzio"
840 m
Supermercati Supermercati
Carrefour Market
270 m
MD Supermercato
1,0 Km
Bar Bar
New Divino
500 m
Bar
530 m
Sunny Place Cafè
540 m
Lo storico Londra
570 m
Bar Bagarotti
1,6 Km
Ristoranti Ristoranti
Pizzeria, Bar
740 m
Charleston Ristorante Pizzeria
1,0 Km
Mostra tutto

Caratteristiche

Rif.:
61134556
Piano:
Terra con giardino di 2
Totale piani:
2
Box:
1
Posti auto:
1
Balconi:
1
Mostra tutto
Prezzo Prezzo
€ 259.000
Rata mutuo Rata mutuo
€ 1.194 / mese
Spese annue Spese annue
€ 0
Proponi il tuo prezzoProponi il tuo prezzo
Immobile valutato con T·Valuta

Classe Energetica

C
C
C
C
C
C
C
C
C
EP globale non rinnovabile:
109.47 kW h/m² anno
EP globale rinnovabile:
5.23 kW h/m² anno
EP invernale del fabbricato:
EP estiva del fabbricato:
Anno di costruzione:
2002
Riscaldamento:
Autonomo
Tipo impianto:
A radiatori
Tipo alimentazione:
Metano

Ti interessa visionare l'immobile?

Fissa un appuntamento  Fissa un appuntamento

Richiedi informazioni

* Questi campi sono obbligatori

Calcola il tuo mutuo

Semplice e senza impegno
Anticipo

( % )
Mutuo

( % )

pochi semplici passi

inserisci i tuoi dati
Questionario completato
Grazie per aver richiesto un appuntamento senza impegno con un nostro Consulente del Credito e Assicurativo.

Hai inserito correttamente tutti i dati necessari e a breve riceverai una e-mail con un link da convalidare per inviare i tuoi dati.
Affiliato
Studio Pavia Tre D.I.
Via Garibaldi, 28 27011 Belgioioso (PV)

Il nostro staff


  • Beniamino Rampino
    Affiliato

  • Maria Renna
    Responsabile

  • Paola Palanza
    Responsabile
Via Garibaldi, 28 27011 Belgioioso (PV)
Zona: Belgioioso-Albuzzano-Linarolo-Corteolona-S. Cristina
Mostra su mappa
Orari: Dal Lunedì al Venerdì 9:00 - 12:30 14:30 - 19:30 Sabato 9:00 - 12:30 Pomeriggio su Appuntamento
Affiliato
Studio Pavia Tre D.I.
Via Garibaldi, 28 27011 Belgioioso (PV)

2025 Tecnocasa Franchising S.p.A. - P. IVA 08365160152 - Via Monte Bianco 60/A 20089 Rozzano (MI). Ogni agenzia ha un proprio titolare ed è autonoma. Privacy policy | Policy utilizzo | Cookie policy